особенности объекта
- 5 спальни
- 7 ванные комнаты
- 469 m2 построить
- 903 m2 участок
- бассейн: Yes
описание недвижимости
Эксклюзивные новые виллы на продажу в Лас-Фаролас, Михас-Коста
Превосходное расположение у моря на побережье Коста-дель-Соль
Откройте для себя этот новый комплекс из 7 роскошных вилл, расположенный в престижном и устоявшемся районе Лас-Фаролас, между Фуэнхиролой и Ла-Кала-де-Михас. Всего в 100 метрах от пляжа, эти исключительные дома имеют частичный вид на море и горы и удобный доступ прямо с прибрежной дороги N-340 (A7). Район известен своей тишиной, близостью к Средиземному морю и отличным транспортным сообщением с Малагой, Марбельей и аэропортом.
Элегантный дизайн и высокое качество строительства
Этот проект, построенный застройщиком с большим опытом работы на побережье Коста-дель-Соль, отражает высочайшие стандарты качества, безопасности и современного дизайна. Каждая вилла сочетает в себе средиземноморский шарм и современную архитектуру, предлагая светлое, функциональное и элегантное жилое пространство.
Просторная планировка на трех уровнях
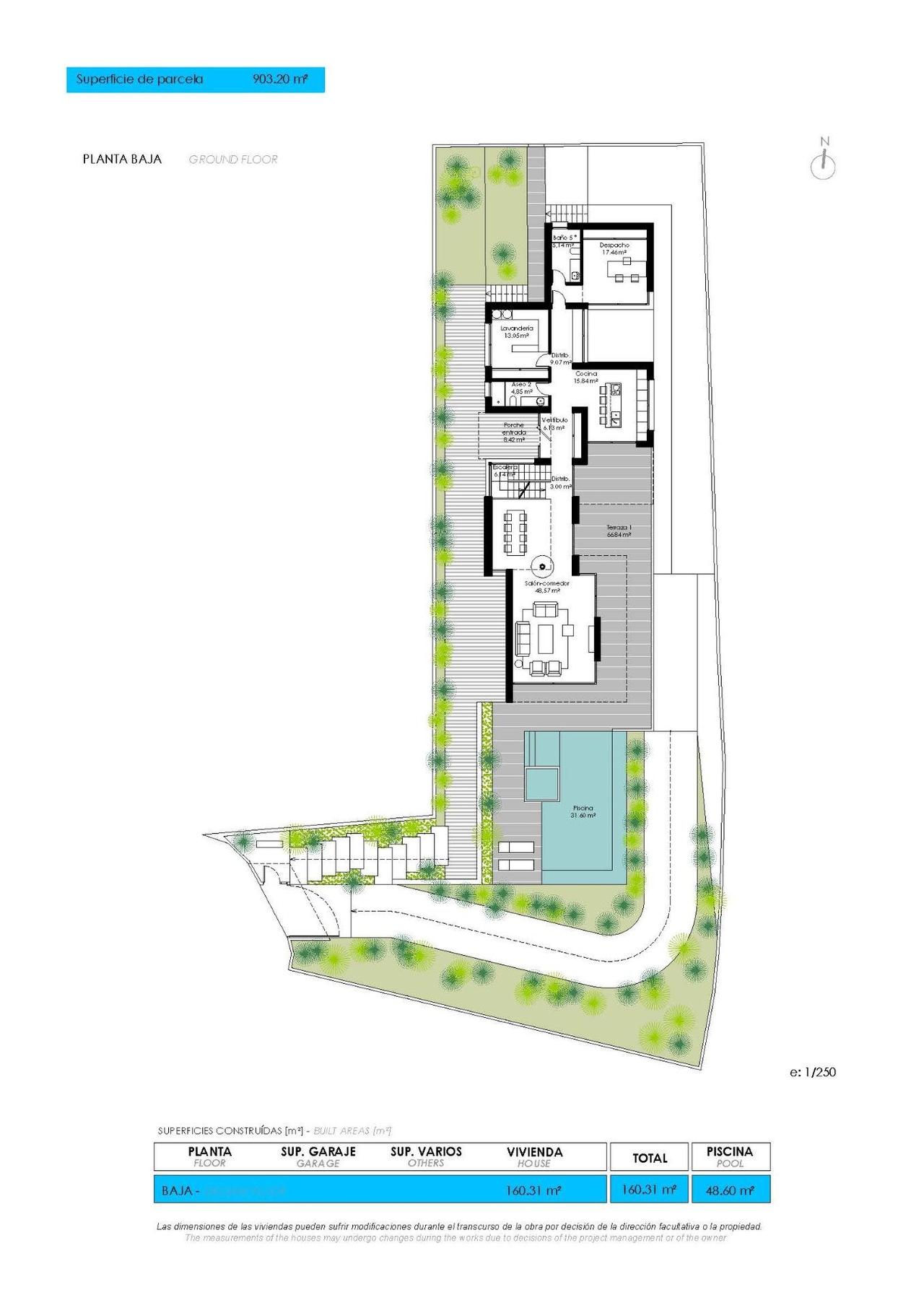
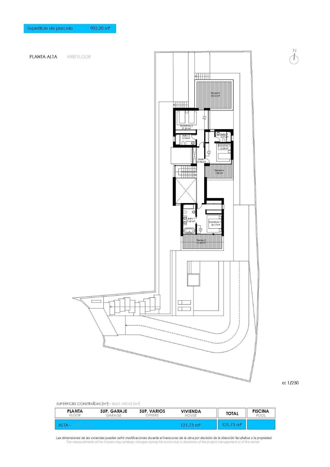
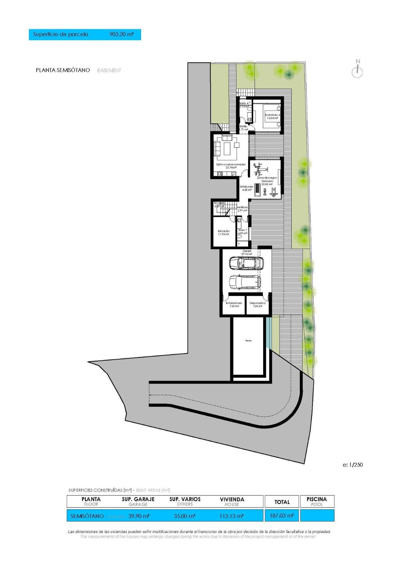
Каждая вилла расположена на трех этажах и предлагает просторные внутренние и внешние помещения:
Подвал: гараж на две машины, технические помещения, кладовая, дополнительная спальня с ванной комнатой и многофункциональные зоны, идеально подходящие для тренажерного зала, домашнего кинотеатра или игровой комнаты.
Основной этаж: большая гостиная и столовая с кухней, прачечная, гостевой туалет и одна спальня с ванной комнатой. Жилая зона выходит на просторную террасу с частным бассейном и садом.
Верхний этаж: дополнительные спальни, включая главную спальню с отдельно стоящей ванной и выходом на частные террасы, некоторые с видом на море.
Роскошная отделка и современный комфорт
Каждая вилла оборудована материалами премиум-класса и новейшими технологиями, в том числе:
Полностью укомплектованная кухонная техника Bosch
Моторизованные жалюзи во всех спальнях
Подогрев полов с помощью аэротермальной системы и кондиционирование воздуха с помощью воздуховодов.
Умная домашняя автоматизация для управления жалюзи, освещением и климатом
Ландшафтные сады с автоматической системой полива
Расстояния до основных достопримечательностей:
Пляж: 100 м
Ла Кала де Михас: 3 км
Центр Фуэнхиролы: 6 км
Марбелья: 22 км
Международный аэропорт Малаги: 30 км
Ближайший гольф-клуб (Chaparral Golf): 2 км
Центр города Малага: 40 км
Комфортный и престижный образ жизни
Эти виллы в Лас-Фаролас предлагают непревзойденное сочетание уединения, роскоши и близости к морю, что делает их идеальным выбором в качестве постоянного места жительства, дома для отдыха или инвестиции на побережье Коста-дель-Соль.
Свяжитесь с нами сегодня, чтобы договориться о просмотре и найти виллу своей мечты в Михас-Коста.










































